
When Greg Margolus of Hometronics in Dallas TX (http://hometronics.com/) was approached by his former client the Dallas World Trade Center, he was asked to consult and ultimately design and oversee the execution of an “Experience Center” inside their Design Center – representing the best of class manufacturers in the luxury home technology category.

Greg reached out to a key architect and interior designer to create the space planning and aesthetics while selecting key manufacturers to represent the best of the best in ten product categories, while working to design the spaces that would showcase these technologies, tying all technologies together with a Crestron-based control platform.
Greg’s technology choices included Samsung for all the displays, including The Wall, a $400,000 Micro LED modular display featuring 2’x3’ panels measuring 1.5” thickness, which assembled into a seamless 146” video wall, paired with DISH Hopper 3 technology for best-in-class video content and superior technology.

Other manufacturers included California Audio Technology for sound reproduction including ceiling-mounted in-wall loud speakers; Bryte Bed for sleep technology (think of it as a Sleep by Number on steroids that automatically adjusts to body pressure on its mattress and predicts when your body is ready to wake up from sleep); programmable Hue Lighting; Future Automation TV lifts that conceal TV monitors under a bed trundle-style; CoeLux nanotechnology-sourced skylights with blue sky views; and more.

The Smarter Living by Design Experience Center features rotating technology displays by guest vendors and participating anchor vendors are welcome to utilize the meeting space and kitchen facilities on a free, appointment basis.
Greg was a pioneer in home automation out of college in 1986, when his father asked his help to assemble an early home automation system in their family home. As he researched applications to apply to his home, Greg explored how to integrate home automation into his career, and his adoption of the Crestron control platform and his integration with the DISH Custom Integration program were an outgrowth of his research. There were not many folks exploring home automation in 1986, and Greg has parlayed his early experience into a competitive advantage in the industry.
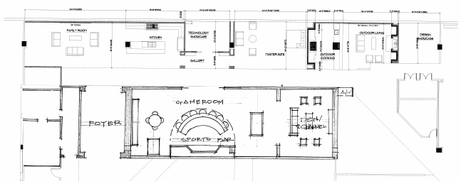
Greg is currently developing Phase 2 of this Experience Center to now include a game room and den to augment the existing simulated home environment. The Dallas Design Center is the world’s largest and acts to inspire many visiting interior designers, architects and home automation experts with its innovations.
















