The first time an integrator tackles a new product category it can be a baptism by fire. And that certainly could have been the case for St. Louis-based Integration Controls as it tackled its first-ever outdoor audio project on a massive scale. But the company’s reliance on Coastal Source enabled the company to close the sale, design the system and complete the installation smoothly for this challenging $73,000 project.
Integration Controls, founded by Jeff and Jamie Briesemeister, has always focused on bringing design-friendly home automation to its clients.
“Our guiding principles are ambiance, entertainment, comfort and peace of mind,” says Jamie. “Our goal is to cohesively integrate technology, or to ‘design out’ the technology so it is hidden, and the focus is on the experience, not the technology.”
Those principles fit perfectly with the expectations of the homeowners, architect and designer for this large six-figure job in Quincy, Ill., about a 2.5-hour drive away. The unique project was a referral from architect David Schaub, with whom the company had worked with previously, and the designer on the project was Heather Helms. The original home is a 100-year-old, 4,000-square-foot structure with a massive 12,000-square-foot addition.

Later, the owners tore down an adjacent house and built a terraced lot with a swimming pool and a detached 1500-square-foot pool house. The total outdoor area is about 5,000 square feet and required a detailed audio layout.
The project was the first time Integration Controls had ever used Coastal Source equipment let alone the Coastal Source Design Services. Indeed, the project was originally spec’ed with another manufacturer’s products but after the clients upgraded some of the interior audio, the company quickly recognized that the homeowners wanted higher quality equipment. The Coastal Source sales rep drove one of the company’s demo trucks up from Oklahoma, where Integration Controls set up a demo with the originally spec’ed system side by side against the Coastal Source system.
“When the client heard the quality of the sound and held the Coastal Source speakers in his hands, it helped seal the deal,” says Chase Mosman, general manager at Integration Controls.
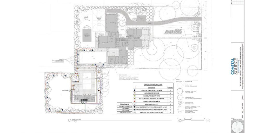
To get the project rolling, Integration Controls simply submitted a CAD file of the landscape design to Coastal Source. After a few back-and-forth tweaks, the full layout was set and turned around quickly. The project has four audio zones covering the bocci ball lawn, outdoor deck with a TV, pool deck and a terrace. Integration Controls installed 20 Coastal Source mid/full-range speakers, 12 subwoofers, and four amplifiers. Everything is tied together via Savant controls with Lutron lighting.
“Every manufacturer offers some level of design service, but the layout and detail we received from Coastal Source was much higher quality. It had specific model numbers, outlined the expectation of the area of sound coverage, full wiring diagram and more. Some other company’s design services are simply stickers glued on to a blueprint. Coastal Source gives you everything,” says Mosman.
Coastal Source’s Sub/Zero “bass steering” technology was also key to overcoming one of the biggest challenges on the project.
“The home is located in heart of downtown Quincy in a densely populated area,” says Mosman. “So we were concerned about have too much bass and disturbing the neighbors. That is one reason we opted for the technology to help control the direction of bass.”
Mosman also liked Coastal Source’s proprietary wiring system which comes in 5-, 10-, 25-, 50- and 100- foot lengths.
“It was all very clearly laid out for us in the design plan. Since this was our first outdoor project, we asked them for some extra lengths of wiring just in case, but it was perfectly accurate. It’s nice to have the experts telling us which products to use,” says Mosman. Briesemeister says the Coastal Source Design Service is a great value-add for integrators.
“It’s nice to have experts to lean on,” she adds.
Coastal Source Design Service Origins

Coastal Source started its Design Services for both audio and landscape lighting about 5 years ago.
“We believed we needed to offer this service because our system is different,” says Peter Sepesi, technical operations specialist at Coastal Source. “ The ystem is simple, but it is different from standard cabling so there is a learning curve. Also, we know how busy dealers are and many integrators don’t have design folks on staff.”
He adds, “We act as a hidden asset to the dealer. The integrator can go back to the client with a set of well-executed drawings and specs.”
Ideally, the integrator provides a blueprint or drawing to Coastal Source, but Sepesi admits that happens less than 30% of the time. Most times, the Coastal Source design team is designing the system using Google Earth images of the property, photos taken by the dealer on their smart phone, or in some instances drone footage provided by the integrator.

To get started, integrators simply access a submission form on the Coastal Source website. The form has a series of key questions that the dealer answers to initiate the design, including:
- What is the jobsite address? (This is key so the Design Services team can access the satellite images of the area.)
- Are there any areas on the landscape that need to be avoided with wiring, lighting or audio?
- Are there particular focal points in the landscape design, such as a stately tree, firepit, outdoor kitchen, etc., that need specialized lighting?
- Any areas of the landscape that are viewable from inside the home that should be highlighted with lighting, such as a fountain that sits just outside a bay window?
- For outdoor audio, what are the areas of coverage desired?
- How many audio zones are required?
- Will the system be integrated with a third-party control system or standalone?
From the time the form is submitted, the average turnaround time is between 7 and 10 days. The service has two tiers. At no cost, Coastal Source will locate speakers and lighting fixtures in a blueprint. For a fee, the Coastal Source Design Services team will create a specification that includes a complete lighting and audio layout that includes the wire runs, transformers, and lighting fixture and speaker models.
The design plan will even get to the level of specifying the color temperature for each lamp. That detail plan also generates a full bill of materials for the integrator, so if the dealer gets the project, it is simply a matter of clicking a button to order the equipment. Additionally, the dealer is credited for the design service fee if he gets the contract for the project… making the service free in essence. According to Sepesi, dealers close a large number of the projects they submit.















